Котел 1600 кВт дизельный в Бейнеу

Дизельный котел КВа 1600 кВт
Котел КВа 1600 кВт дизельный
Чертеж дизельного котла КВа 1600 кВт
Дизельный котел КВа 1600 кВт чертеж
Дизельный водогрейный котел 1600 кВт
Водогрейный дизельный котел 1600 кВт
Дизельный котел 1600 кВт промышленный
Промышленный дизельный котел 1600 кВт
Дизельные котлы 1600 кВт
Котлы дизельные 1600 кВт
Котел 1600 кВт отопительный на дизеле
Отопительный котел 1600 кВт на дизеле
Дизельный котел 1600 кВт производство
Производство дизельных котлов 1600 кВт
Дизельный котел КВа 1600 кВт
Чертеж дизельного котла КВа 1600 кВт
Дизельный водогрейный котел 1600 кВт
Дизельный котел 1600 кВт промышленный
Дизельные котлы 1600 кВт
Котел 1600 кВт отопительный на дизеле
Дизельный котел 1600 кВт производство
Цена
5 800 320 ₸
От 5 800 320 ₸ с доставкой до г.
Логотип WhatsApp Связаться
по WhatsApp
  • Автоматическое регулирование температурных режимов
  • Надежная гладкотрубная конструкция исключает деформации и разрывы швов
  • Встроенная система взрывобезопасности
  • Низкие требования к качеству питательной воды
  • Модель работает с отечественными и импортными горелками

Технические характеристики

МаркаКотел 1600 кВт на дизеле
ВидВодогрейный
Тип отопительного котлаГазовый
БрендHEATEXPERT
ТипКотел КВа
Вид топкиДизельная горелка
Совместимое горелочное устройствоИмпортные горелки Gib Unigas, Oilon, Ecoflam и тд.
Максимальная тепловая мощность1.6 МВт
Максимальная тепловая мощность1600 кВт
Максимальная тепловая мощность1.38 Гкал
Диапазон регулирования мощности40-100 %
ТопливоДизель
Низшая теплота сгорания проектного топлива10200 кКал/кг
КПД котла на ДИЗЕЛЕ, не менее92.1 %
Расход ДИЗЕЛЯ среднечасовой за отопительный сезон82 кг/ч
Расход ДИЗЕЛЯ при максимальной нагрузке котла146 кг/ч
Расход условного топлива213 кг/ч
Минимальная температура воды на входе в котел55 °С
Максимальная температура воды на выходе из котла115 °С
Давление воды, не более0.3-0.6 (3-6) МПа (кгс/см²)
Номинальный расход теплоносителя56 м³/ч
Расход теплоносителя через котел min-max42-70 м³/ч
Гидравлическое сопротивление при номинальном расходене более 0.07 (0.7) МПа (кгс/см²)
Аэродинамическое сопротивление300 (30) Па (мм. вод. ст.)
Давление в топочной камере350 (35) Па (мм. вод. ст.)
Объем уходящих газов2950 м³/ч
Температура уходящих газов167 °С
ТягаПринудительная
Водяной объем котла850 л
Объем топочной камеры3.56 м³
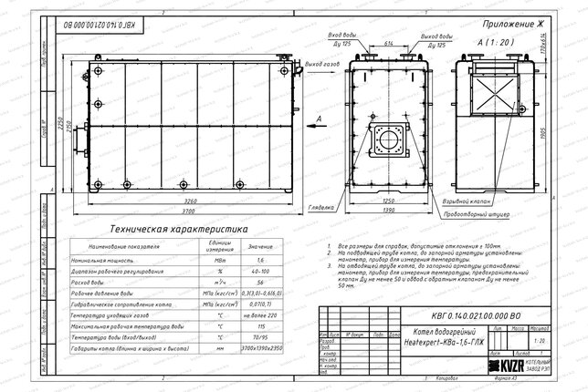
Размер топочной камеры, длина*ширина*высота2970х1000х1200 мм
Присоединительные размеры по водяному тракту125 Ду
Присоединительные размеры газохода уходящих газов, ширина*высота / сечение614х170 / 0.11 мм/м²
Габаритные размеры котла, длина*ширина*высота3490х1390х2210 мм
Масса3900 кг
Конструкция котлаВодотрубная
Количество контуровОдноконтурный
РазмещениеНапольный
Тип камеры сгоранияЗакрытый
УправлениеЭлектронное
Принцип работы газового котлаКонвекционный
ЭнергонезависимыйНет
Тип питанияТрехфазное
Встроенный циркуляционный насосНет
Встроенный расширительный бакНет
ЭнергоэффективностьВысокая
Отапливаемая площадьот 13300 до 17600 м²
Отапливаемый объемот 40000 до 52500 м³
Размеры корпуса котла, длина*ширина*высота3260х1250х2110 мм

Промышленный дизельный котел 1600 кВт в Бейнеу

Промышленный дизельный котел КВа 1600 кВт предназначен для установки в промышленных котельных с целью отопления и горячего водоснабжения производственных помещений и жилых зданий. Может работать с широким рядом горелочных устройств как иностранного, так и отечественного производства. Максимальная температура нагрева воды 115 °С, давление - от 0,3 до 0,6 МПа. Используемое топливо – дизель.

Дизельный котел 1600 кВт устройство

Водогрейный стальной жидкотопливный котел 1600 кВт на дизеле - напольный, гладкотрубный, выполнен в горизонтальном расположении. Газоплотная топка расположена в передней части теплоагрегата. В верхней части котельного блока находится двухходовой конвективный пакет. Фронтовая плита может быть выполнена под конкретный тип горелки. Снаружи котлоагрегат обшивается стальными листами с теплоизоляцией.

Конструкция трубной системы обеспечивает компактность котла. Гладкотрубная поверхность нагрева исключает деформации и разрывы швов. Стены газоплотной топки представляют собой охлаждаемые трубы с вваренной между ними стальной полосой. В задней зоне камеры горения крепится взрывной клапан. При повышении давления в топочной камере, клапан открывается и спускает давление. Конвективные пакеты размещены в шахматном порядке друг напротив друга. Благодаря этому поверхность нагрева имеет большую полезную площадь и максимальный коэффициент передачи тепла. Дымовые газы успевают охладиться к выходу из котлоагрегата до температуры 1600-180 °С, что снижает теплопотери.

Благодаря гладкотрубной системе, небольшому объему циркулирующей воды, наличию взрывного клапана – водотрубный котел 1600 кВт дизель безопасен, нет риска взрыва в аварийной ситуации.

За счет изоляции трубной системы котла плитами ПТЭ и обшивке стальными листами температура наружных стенок не превышает 30 °С.

Гидравлическая схема котла

Стационарный отопительный водяной котел 1600 кВт на жидком дизельном топливе не требователен к качеству питательной воды.

Высокая скорость движения воды турбулизирует поток и не допускает отложение солей и образование накипи на стенках труб. Многочисленные перегородки в коллекторах распределяют поток теплоносителя. В результате чего в трубной системе исключаются застойные зоны, тепловые напряжения и локальный перегрев.

Принцип работы котла 1600 кВт на дизеле

Горелка обеспечивает смешивание топлива с воздухом, поступление газовоздушной смеси в топку и ее горение. При помощи горелки поддерживается необходимая температура в котлоагрегате, но не более 115 °С. При достижении предельной температуры воды горелка автоматически отключается и включается.

Тепло образующееся от горения топлива поступает в конвективную часть, нагревая теплоноситель.

Конструкция топочной камеры и ее большой объем позволяют подключать горелки большинства ведущих российских и иностранных производителей, в том числе EMMA, ILKA, CIB UNIGAS, BALTUR, ECOSTAR и другие. Наш завод также производит модели котлов для работы на российских горелках РГМГ, ГБЛ, ГМ, ГМГ, АПНД, ГГ.

Комплект поставки

Цена на напольные дизельные котлы КВа 1600 кВт для отопления включает базовую комплектацию. В состав базовой комплектации входит: затворы, предохранительные клапаны, вентили, манометры, термометры, трехходовые краны.

Дополнительная комплектация

  • автоматика – обеспечивает управление и безопасность котла;
  • горелка – обеспечивает смешивание газа и воздуха, подачу газовоздушной смеси к фронту горения, регулирование процесса горения;
  • циркуляционный насос - обеспечивает циркуляцию воды в котлоагрегате;
  • подпиточный насос – позволяет пополнять объем теплоносителя в контуре.

Купить дизельный котел 1600 кВт

Для того, что бы купить котел 1600 кВт на дизеле в Бейнеу вы можете сделать заявку по телефону +7-7172-69-59-73, либо оформить заявку онлайн. Менеджеры дадут консультацию по подбору вспомогательного оборудования для выбранных вами моделей и рассчитают стоимость доставки. Транспортирование котлоагрегата и вспомогательного оборудования до объекта осуществляется автомобильным транспортом.

Комплект поставки

Затвор Ду 125
Затвор Ду 125
2 штуки
Предохранительный клапан 17с28нж Ду 50
Клапан предохранительный 17с28нж Ду 50
1 штука
Клапан обратный
Клапан обратный
1 штука
Манометр МП 160
Манометр МП 160
2 штуки
Кран трехходовой ДУ 15
Кран Ду 15
2 штуки
Термометр ТТЖО
Термометр ТТЖО
2 штуки
Оправа термометра ОПТ
Оправа ОПТ
2 штуки
Шаровый кран
Кран шаровый
15 штук

Дополнительно потребуется

Дизельная горелка Emma
Цена 3 809 640 тг.
Дизельная горелка СибСтронг
Цена по запросу
Насос К консольный
К 100-80-160а
Цена 595 932 тг.
Насос К консольный
К 65-50-160а
Цена 388 596 тг.
Насос TD
Насос TD65-34G2 (7.5 кВт)
Цена 1 238 292 тг.
Насос TD
Насос TD80-32G2 (11 кВт)
Цена 1 870 476 тг.
Насос CHL
Насос CHL8-30 (1.1 кВт)
Цена 618 828 тг.

Похожая продукция

Газовый котел КВа 1600 кВт
Цена 5 800 320 тг.
Твердотопливный котел 1630 кВт
Цена 6 417 240 тг.
Дизельный котел КВа 1500 кВт
Цена 5 730 360 тг.
Дизельный котел КВа 2000 кВт
Цена 6 849 720 тг.

Сертификаты товара

Сертификат на водогрейные котлы на газе и жидком топливе
Сертификат на водогрейные котлы на газе и жидком топливе

Собственное производство

Котельный завод производит
  • Паровые котлы от 300 кг до 2.5 тонны пара в час
  • Промышленные водогрейные котлы от 150 КВт до 4 МВт на всех видах топлива
  • Механические топки ТШПМ, шурующая планка и ТЛПХ, ленточное полотно прямого хода
  • Циклоны для очистки воздуха и дымовых газов для производств и промышленных отраслей
  • Транспортеры и системы топливоподачи и шлакоудаления
Подробнее о производстве
Собственное производство
Смотреть видео
с производства